• 您好,欢迎来到恒誉集成建筑!
恒誉产品

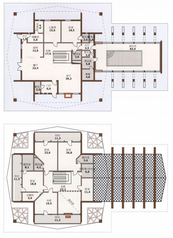
钢结构别墅

钢结构别墅是纳维亚豪华住宅和现代建筑理念的完美结合,很好的满足那些喜欢非标准解决方案的客户。一个适合所有家庭成员生活习惯的现代豪华住宅。在第二层,拥有相邻的单独浴室和衣帽间的卧室也可以作为生活空间使用。还设有健身房和游泳池的休闲区体现了休闲功能。在一片广阔的自然空间中,被周围风景如画的景色环绕,这座建筑注定是拥有者的骄傲。

联系我们
更多

恒誉集成建筑

销售部电话:024-78847888

综合部电话:024-78995000

企业传真:024-78847999

企业邮箱:tlshyjc@163.com

企业地址:辽宁铁岭市铁岭县凡河镇

Copying(C) 2026 恒誉集成建筑 All Rights Reserved.